静岡県の 物件一覧

静岡県の紹介文です。
条件を絞り込む

物件種別

価格

建物面積

土地面積

駅からの徒歩

築年数

こだわり条件

静岡県の 倉庫・工場  全32件中 1~20件を表示
表示件数:
  • リスト表示
表示件数:
並び替え
1000万円
静岡県浜松市南区三新町
バス/「南営業所」バス停 停歩20分
建物面積 102.75㎡ 土地面積 230.34㎡
建物構造 鉄骨造 用途地域 選択なし
築年数 37年 坪単価 14.3万円

1000万円

浜松市南区三新町 売工場

バス/「南営業所」バス停 停歩20分

建物面積
102.75㎡(31.1坪)
建物構造
鉄骨造
築年数
37年
土地面積
230.34㎡㎡(69.7坪)
7800万円
静岡県熱海市泉
JR東海道本線 湯河原駅 徒歩13分
建物面積 707.22㎡ 土地面積 1154.87㎡
建物構造 鉄骨造 用途地域 選択なし
築年数 33年 坪単価 22.3万円

7800万円

熱海市泉 売工場・倉庫

JR東海道本線 湯河原駅 徒歩13分

建物面積
707.22㎡(213.9坪)
建物構造
鉄骨造
築年数
33年
土地面積
1154.87㎡㎡(349.3坪)
7523万円
静岡県浜松市北区細江町気賀
天竜浜名湖鉄道 気賀駅 徒歩4分
建物面積 496.27㎡ 土地面積 1303.16㎡
建物構造 鉄骨 用途地域 2種住居
築年数 38年 坪単価 19.1万円

7523万円

浜松市北区細江町気賀 気賀

天竜浜名湖鉄道 気賀駅 徒歩4分

建物面積
496.27㎡(150.1坪)
建物構造
鉄骨
築年数
38年
土地面積
1303.16㎡㎡(394.2坪)
7523万円
静岡県浜松市北区細江町気賀
浜名湖鉄道 気賀 徒歩4分
建物面積 496.27㎡ 土地面積 1303.16㎡
建物構造 鉄骨造 用途地域 第二種住居地域
築年数 38年 坪単価 19.1万円

7523万円

北区細江町気賀 売工場

浜名湖鉄道 気賀 徒歩4分

建物面積
496.27㎡(150.12坪)
建物構造
鉄骨造
築年数
38年
土地面積
1303.16㎡㎡(394.21坪)
1084万円
静岡県富士宮市三園平
身延線 富士宮駅 バス30分/宮バス中央循環線 宮北町バス停 停
建物面積 97.5㎡ 土地面積 238.01㎡
建物構造 軽量鉄骨 用途地域 第一種住居地域
築年数 58年 坪単価 15.1万円

1084万円

富士宮市三園平 売工場

身延線 富士宮駅 バス30分/宮バス中央循環線 宮北町バス停 停

建物面積
97.5㎡(29.5坪)
建物構造
軽量鉄骨
築年数
58年
土地面積
238.01㎡㎡(72坪)
3500万円
静岡県富士市宮島 
東海道本線 「富士」駅 徒歩26分
建物面積 215.12 ㎡ 土地面積 462.84㎡
建物構造 鉄骨造 用途地域 第一種住居地域
築年数 31年 坪単価 25.0万円

3500万円

富士市宮島 売倉庫

東海道本線 「富士」駅 徒歩26分

建物面積
215.12 ㎡(65.1坪)
建物構造
鉄骨造
築年数
31年
土地面積
462.84㎡㎡(140坪)
1億円
静岡県浜松市北区細江町中川
天竜浜名湖鉄道 金指 徒歩14分
建物面積 347㎡ 土地面積 1939.04㎡
建物構造 鉄骨造 用途地域 工業専用地域
築年数 33年 坪単価 17.1万円

1億円

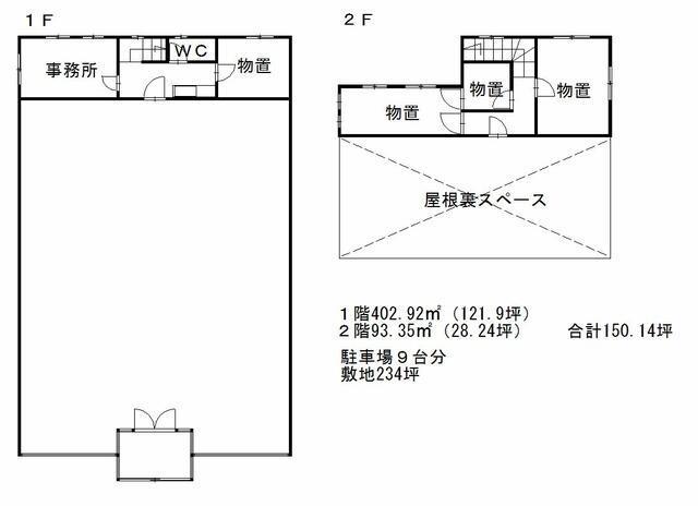
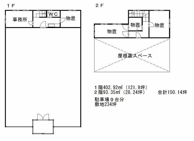
細江町事務所付倉庫

天竜浜名湖鉄道 金指 徒歩14分

建物面積
347㎡(104.97坪)
建物構造
鉄骨造
築年数
33年
土地面積
1939.04㎡㎡(586.56坪)
2380万円
静岡県島田市神座 
オレンジタウン神座バス停 徒歩7分
建物面積 266.7 ㎡ 土地面積 565.28㎡
建物構造 鉄骨造 用途地域 -
築年数 36年 坪単価 14.6万円

2380万円

島田市神座 売工場

オレンジタウン神座バス停 徒歩7分

建物面積
266.7 ㎡(80.7坪)
建物構造
鉄骨造
築年数
36年
土地面積
565.28㎡㎡(171坪)
4000万円
静岡県沼津市小諏訪 
東海道本線 「沼津」駅 徒歩29分
建物面積 169.2 ㎡ 土地面積 1023.58㎡
建物構造 その他 用途地域 第一種住居地域
築年数 59年 坪単価 12.9万円

4000万円

静岡県沼津市小諏訪

東海道本線 「沼津」駅 徒歩29分

建物面積
169.2 ㎡(51.2坪)
建物構造
その他
築年数
59年
土地面積
1023.58㎡㎡(309.6坪)
1800万円
静岡県掛川市大野 
東海道本線 「菊川」駅 徒歩8000m
建物面積 321.48 ㎡ 土地面積 1261.30㎡
建物構造 鉄骨造 用途地域 選択なし
築年数 36年 坪単価 4.7万円

1800万円

掛川市大野 売工場

東海道本線 「菊川」駅 徒歩8000m

建物面積
321.48 ㎡(97.2坪)
建物構造
鉄骨造
築年数
36年
土地面積
1261.30㎡㎡(381.5坪)
2000万円
静岡県湖西市新所 
天竜浜名湖鉄道 「大森」駅 徒歩30分 遠鉄 日ノ岡バス停 徒歩
建物面積 179.3 ㎡ 土地面積 841.22㎡
建物構造 鉄骨造 用途地域 選択なし
築年数 48年 坪単価 7.9万円

2000万円

湖西市新所 売工場

天竜浜名湖鉄道 「大森」駅 徒歩30分 遠鉄 日ノ岡バス停 徒歩

建物面積
179.3 ㎡(54.2坪)
建物構造
鉄骨造
築年数
48年
土地面積
841.22㎡㎡(254.5坪)
1950万円
静岡県島田市岸町
東海道本線 六合駅 徒歩14分
建物面積 71.28㎡ 土地面積 273.63㎡
建物構造 鉄骨造 用途地域 選択なし
築年数 17年 坪単価 23.6万円

1950万円

島田市岸町売り倉庫

東海道本線 六合駅 徒歩14分

建物面積
71.28㎡(21.6坪)
建物構造
鉄骨造
築年数
17年
土地面積
273.63㎡㎡(82.8坪)
580万円
静岡県掛川市横須賀
東海道本線 袋井駅 バス24分/新横須賀バス停 停歩5分
建物面積 101.02㎡ 土地面積 99.59㎡
建物構造 木造 用途地域 1種住居
築年数 27年 坪単価 19.3万円

580万円

掛川市横須賀 収入物件

東海道本線 袋井駅 バス24分/新横須賀バス停 停歩5分

建物面積
101.02㎡(30.6坪)
建物構造
木造
築年数
27年
土地面積
99.59㎡㎡(30.1坪)
700万円
静岡県藤枝市瀬戸新屋
バス/「しずてつ「瀬戸新屋北」」バス停 停歩4分
建物面積 52.04㎡ 土地面積 132.43㎡
建物構造 木造 用途地域 2種中高
築年数 54年 坪単価 17.5万円

700万円

瀬戸新屋売貸家

バス/「しずてつ「瀬戸新屋北」」バス停 停歩4分

建物面積
52.04㎡(15.7坪)
建物構造
木造
築年数
54年
土地面積
132.43㎡㎡(40.1坪)
400万円
静岡県浜松市南区高塚町
東海道本線 高塚駅 徒歩15分
建物面積 57㎡ 土地面積 130.56㎡
建物構造 木造 用途地域 -
築年数 50年 坪単価 10.1万円

400万円

浜松市南区高塚町戸建

東海道本線 高塚駅 徒歩15分

建物面積
57㎡(17.2坪)
建物構造
木造
築年数
50年
土地面積
130.56㎡㎡(39.5坪)
280万円
静岡県田方郡函南町平井
東海道本線 函南駅 徒歩99分
建物面積 49.68㎡ 土地面積 257.00㎡
建物構造 木造 用途地域 -
築年数 52年 坪単価 3.6万円

280万円

函南町平井 中古戸建

東海道本線 函南駅 徒歩99分

建物面積
49.68㎡(15坪)
建物構造
木造
築年数
52年
土地面積
257.00㎡㎡(77.7坪)
1360万円
静岡県菊川市柳2丁目
東海道線 菊川 徒歩11分
建物面積 210.74㎡ 土地面積 233.00㎡
建物構造 鉄骨造 用途地域 第一種中高層住居専用地域
築年数 37年 坪単価 19.3万円

1360万円

菊川市柳2丁目 売倉庫

東海道線 菊川 徒歩11分

建物面積
210.74㎡(63.75坪)
建物構造
鉄骨造
築年数
37年
土地面積
233.00㎡㎡(70.48坪)
4500万円
静岡県静岡市葵区研屋町 
東海道本線 「静岡」駅 徒歩1300m
建物面積 361.13 ㎡ 土地面積 207.97㎡
建物構造 鉄骨造 用途地域 近隣商業地域
築年数 35年 坪単価 79.5万円

4500万円

静岡市葵区研屋町 売倉庫

東海道本線 「静岡」駅 徒歩1300m

建物面積
361.13 ㎡(109.2坪)
建物構造
鉄骨造
築年数
35年
土地面積
207.97㎡㎡(62.9坪)
1.3億円
静岡県焼津市浜当目
東海道本線 焼津駅 徒歩25分
建物面積 1041.26㎡ 土地面積 1995.50㎡
建物構造 鉄骨造 用途地域 -
築年数 46年 坪単価 21.5万円

1.3億円

焼津市浜当目 売倉庫

東海道本線 焼津駅 徒歩25分

建物面積
1041.26㎡(315坪)
建物構造
鉄骨造
築年数
46年
土地面積
1995.50㎡㎡(603.6坪)
4000万円
静岡県牧之原市静波
牧之原市榛原庁舎より徒歩5分
建物面積 1352.92㎡ 土地面積 1352.92㎡
建物構造 鉄骨造 用途地域 第二種住居地域
築年数 53年 坪単価 9.8万円

4000万円

牧之原市静波工場

牧之原市榛原庁舎より徒歩5分

建物面積
1352.92㎡(409.3坪)
建物構造
鉄骨造
築年数
53年
土地面積
1352.92㎡㎡(409.3坪)
並び替え
  • リスト表示
表示件数:
静岡県の 倉庫・工場  全32件中 1~20件を表示

チェックした物件をまとめて

(default) 28 queries took 55 ms
NrQueryErrorAffectedNum. rowsTook (ms)
1SELECT `SystemValue`.`id`, `SystemValue`.`name`, `SystemValue`.`value`, `SystemValue`.`type`, `SystemValue`.`valid`, `SystemValue`.`tag`, `SystemValue`.`class`, `SystemValue`.`comment`, `SystemValue`.`explain`, `SystemValue`.`is_view`, `SystemValue`.`is_required`, `SystemValue`.`memo`, `SystemValue`.`modified` FROM `urisouko_jpalt`.`system_values` AS `SystemValue` WHERE 1 = 123231
2SELECT * FROM cities WHERE prefectures = '静岡県' ORDER BY id ASC43431
3SELECT `Sorting`.`controller`, `Sorting`.`column`, `Sorting`.`sort`, `Sorting`.`limit` FROM `urisouko_jpalt`.`sortings` AS `Sorting` WHERE `controller` = 'properties' LIMIT 1111
4SELECT `Property`.`id`, `Property`.`is_site`, `Property`.`is_publish`, `Property`.`property_name`, `Property`.`price`, `Property`.`before_price`, `Property`.`is_price_change`, `Property`.`unit_price`, `Property`.`pref`, `Property`.`city`, `Property`.`map`, `Property`.`traffic`, `Property`.`traffic_walk_time`, `Property`.`right`, `Property`.`construction`, `Property`.`usage_area`, `Property`.`land_area`, `Property`.`land_area_tsubo`, `Property`.`building_area`, `Property`.`building_area_tsubo`, `Property`.`connection`, `Property`.`private_road`, `Property`.`city_planning`, `Property`.`story`, `Property`.`facility`, `Property`.`parking`, `Property`.`construction_date`, `Property`.`_age`, `Property`.`type`, `Property`.`src_type`, `Property`.`building_coverage`, `Property`.`floor_area_ratio`, `Property`.`geography`, `Property`.`land_use_planning_act`, `Property`.`current_situation`, `Property`.`delivery_time`, `Property`.`person_name`, `Property`.`post_corporation`, `Property`.`post_corporation_tel`, `Property`.`post_corporation_fax`, `Property`.`memo1`, `Property`.`memo2`, `Property`.`special_mention`, `Property`.`recommended_point`, `Property`.`lat`, `Property`.`lng`, `Property`.`is_crane`, `Property`.`is_bungalow`, `Property`.`is_recommend`, `Property`.`is_delete`, `Property`.`price_changed`, `Property`.`stock_confirm`, `Property`.`modified`, `Property`.`created` FROM `urisouko_jpalt`.`properties` AS `Property` WHERE `Property`.`is_publish` = 1 AND `is_delete` = 0 AND `Property`.`pref` = '静岡県' AND `Property`.`is_delete` = 0 ORDER BY `Property`.`id` DESC LIMIT 20202011
5SELECT COUNT(*) AS `count` FROM `urisouko_jpalt`.`properties` AS `Property` WHERE `Property`.`is_publish` = 1 AND `is_delete` = 0 AND `Property`.`pref` = '静岡県' AND `Property`.`is_delete` = 0119
6SELECT `PropertyImage`.`uniquekey` FROM `urisouko_jpalt`.`property_images` AS `PropertyImage` WHERE `PropertyImage`.`property_id` = 17565 AND `PropertyImage`.`is_delete` = 0551
7SELECT `PropertyImage`.`uniquekey` FROM `urisouko_jpalt`.`property_images` AS `PropertyImage` WHERE `PropertyImage`.`property_id` = 17457 AND `PropertyImage`.`is_delete` = 011111
8SELECT `PropertyImage`.`uniquekey` FROM `urisouko_jpalt`.`property_images` AS `PropertyImage` WHERE `PropertyImage`.`property_id` = 17357 AND `PropertyImage`.`is_delete` = 0220
9SELECT `PropertyImage`.`uniquekey` FROM `urisouko_jpalt`.`property_images` AS `PropertyImage` WHERE `PropertyImage`.`property_id` = 17352 AND `PropertyImage`.`is_delete` = 0330
10SELECT `PropertyImage`.`uniquekey` FROM `urisouko_jpalt`.`property_images` AS `PropertyImage` WHERE `PropertyImage`.`property_id` = 17316 AND `PropertyImage`.`is_delete` = 0440
11SELECT `PropertyImage`.`uniquekey` FROM `urisouko_jpalt`.`property_images` AS `PropertyImage` WHERE `PropertyImage`.`property_id` = 17066 AND `PropertyImage`.`is_delete` = 0110
12SELECT `PropertyImage`.`uniquekey` FROM `urisouko_jpalt`.`property_images` AS `PropertyImage` WHERE `PropertyImage`.`property_id` = 16960 AND `PropertyImage`.`is_delete` = 0881
13SELECT `PropertyImage`.`uniquekey` FROM `urisouko_jpalt`.`property_images` AS `PropertyImage` WHERE `PropertyImage`.`property_id` = 16953 AND `PropertyImage`.`is_delete` = 0881
14SELECT `PropertyImage`.`uniquekey` FROM `urisouko_jpalt`.`property_images` AS `PropertyImage` WHERE `PropertyImage`.`property_id` = 16909 AND `PropertyImage`.`is_delete` = 0001
15SELECT `PropertyImage`.`uniquekey` FROM `urisouko_jpalt`.`property_images` AS `PropertyImage` WHERE `PropertyImage`.`property_id` = 16848 AND `PropertyImage`.`is_delete` = 0331
16SELECT `PropertyImage`.`uniquekey` FROM `urisouko_jpalt`.`property_images` AS `PropertyImage` WHERE `PropertyImage`.`property_id` = 16843 AND `PropertyImage`.`is_delete` = 0551
17SELECT `PropertyImage`.`uniquekey` FROM `urisouko_jpalt`.`property_images` AS `PropertyImage` WHERE `PropertyImage`.`property_id` = 16723 AND `PropertyImage`.`is_delete` = 0441
18SELECT `PropertyImage`.`uniquekey` FROM `urisouko_jpalt`.`property_images` AS `PropertyImage` WHERE `PropertyImage`.`property_id` = 15798 AND `PropertyImage`.`is_delete` = 0001
19SELECT `PropertyImage`.`uniquekey` FROM `urisouko_jpalt`.`property_images` AS `PropertyImage` WHERE `PropertyImage`.`property_id` = 15641 AND `PropertyImage`.`is_delete` = 0001
20SELECT `PropertyImage`.`uniquekey` FROM `urisouko_jpalt`.`property_images` AS `PropertyImage` WHERE `PropertyImage`.`property_id` = 15380 AND `PropertyImage`.`is_delete` = 0001
21SELECT `PropertyImage`.`uniquekey` FROM `urisouko_jpalt`.`property_images` AS `PropertyImage` WHERE `PropertyImage`.`property_id` = 15379 AND `PropertyImage`.`is_delete` = 0001
22SELECT `PropertyImage`.`uniquekey` FROM `urisouko_jpalt`.`property_images` AS `PropertyImage` WHERE `PropertyImage`.`property_id` = 14881 AND `PropertyImage`.`is_delete` = 0441
23SELECT `PropertyImage`.`uniquekey` FROM `urisouko_jpalt`.`property_images` AS `PropertyImage` WHERE `PropertyImage`.`property_id` = 13504 AND `PropertyImage`.`is_delete` = 0221
24SELECT `PropertyImage`.`uniquekey` FROM `urisouko_jpalt`.`property_images` AS `PropertyImage` WHERE `PropertyImage`.`property_id` = 13388 AND `PropertyImage`.`is_delete` = 0331
25SELECT `PropertyImage`.`uniquekey` FROM `urisouko_jpalt`.`property_images` AS `PropertyImage` WHERE `PropertyImage`.`property_id` = 13383 AND `PropertyImage`.`is_delete` = 0221
26SELECT `PrefectureDescription`.`id`, `PrefectureDescription`.`pref_name`, `PrefectureDescription`.`description`, `PrefectureDescription`.`icon`, `PrefectureDescription`.`modified`, `PrefectureDescription`.`created` FROM `urisouko_jpalt`.`prefecture_descriptions` AS `PrefectureDescription` WHERE `pref_name` = '静岡県' LIMIT 1111
27SELECT `Selection`.`keys`, `Selection`.`values` FROM `urisouko_jpalt`.`selections` AS `Selection` WHERE `Selection`.`name` = 'prefs' LIMIT 1111
28SELECT pref,COUNT(id) FROM properties WHERE is_publish = 1 AND is_delete = 0 GROUP BY pref464614