森田製作所 売工場売工場
物件番号:14923
| 種目 | 売工場 | ||
|---|---|---|---|
| 価格 | 6300万円(坪単価:27.4万円) | ||
| 所在地 | 埼玉県春日部市豊野町2丁目 | ||
|---|---|---|---|
| 交通 | 東武伊勢崎・大師線 「一ノ割」駅 徒歩3000m | ||
| 用途地域 | 工業地域 | 敷地権利 | 所有権 |
物件概要
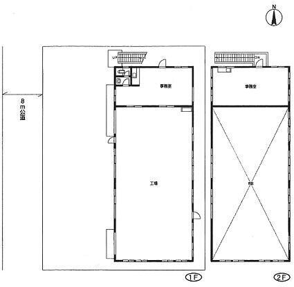
| 土地面積 | 760.38㎡(230坪) | ||||||||||||||||||
|---|---|---|---|---|---|---|---|---|---|---|---|---|---|---|---|---|---|---|---|
| 建物 |
|
||||||||||||||||||
| 地目 | 宅地 | 国土法 | |||||||||||||||||
| 私道面積 | 都市計画 | 市街化区域 | |||||||||||||||||
| 駐車場 | - | ||||||||||||||||||
| 接道 | 西:8m(公道) 位置指定:無 | ||||||||||||||||||
| 現況 | 空家 | 引渡 | 即時 | ||||||||||||||||
| 設備 | プロパンガス,電気,上水道,下水道 | ||||||||||||||||||
| 備考 | 豊野工業団地内、業種制限有、区画整理施工済、瑕疵担保責任免責 | ||||||||||||||||||
| 特記事項 | 倉庫不可。製造業のみ可。工業団地協同組合の加入が条件。 出資金約200万円必要。月々の経費約10万円必要(運営管理費、警備料、共同受電の電気料) | ||||||||||||||||||

0120-80-2020受付/9:30~17:00※土日祝除く
株式会社アドスペース
□本社 〒631-0076 奈良県奈良市富雄北2丁目1-3 富雄北ビル3階 TEL:0742-52-0880 FAX:0742-52-0770
□東京営業所 〒102-0083 東京都千代田区麹町2-10-3 リ・ノウ麹町1階 TEL:03-4405-6136





